A rare opportunity to secure a prime industrial site in the heart of Tamworth's thriving industrial estate. Only 100 meters from Bunnings and with over 45 meter frontage to Plain Street.
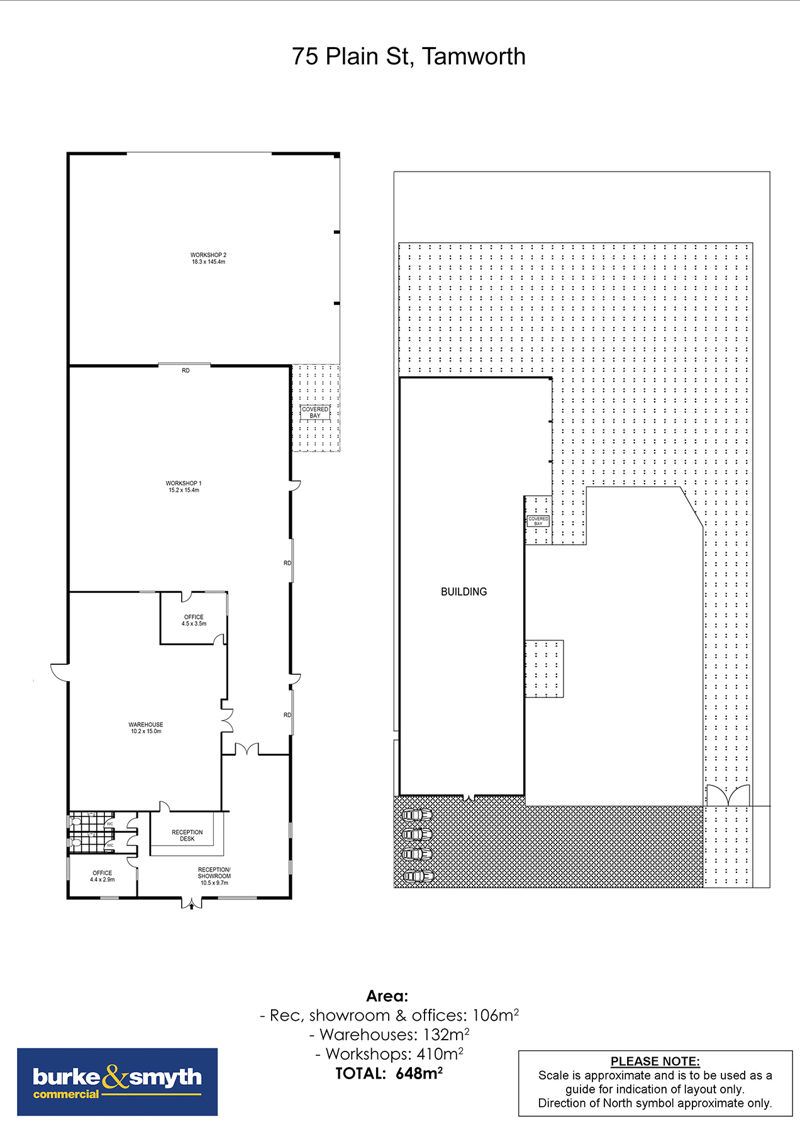
- 75 Plain Street: 4180m2 Parcel of land
- Total GLA 648m2
- Sealed hardstand 1818m2
Clients love our easy and stress-free process. Find out why today.
Burke & Smyth Real Estate 2019 | Privacy Policy | Disclaimer | Marketing by Real Estate Australia and ReNet Real Estate Software